
DEIL KASUGAI OFFICE・SHOWROOM RENOVATION
Design・Construction
愛知県春日井市 | 2025


愛知県東郷町の飲食店「Mega Kebab愛知東郷店」にて、内装の設計・施工を一括して担当。ブランドの世界観を確実に再現しながら、テイクアウト中心の動線を最適化し、店舗の回遊性と視認性を向上。壁面にはDEIL独自素材THE PANELを採用し、質感と耐久性を高めました。地域に根ざした飲食店の魅力を、デザインと施工の一貫したアプローチで支えています。
ファサードは、夜間の視認性とブランドの活気を最大限に引き出したデザイン。 全面ガラス越しに賑わいが伝わり、自然と足が向く存在感を目指しました。




THE PANELを縦張りで使用したアクセントウォール。 トーンの深い木肌が空間を引き締め、異国のランプと調和するリッチな背景をつくっています。

色鮮やかな輸入食品が並ぶフードマーケット。 トルコランプが灯る異国情緒ある空間で、日常に少しの冒険を。




MATERIALS




夜景を眺めながら食事が楽しめる、窓際のカウンター席。トルコランプが空間に彩りを添えています。


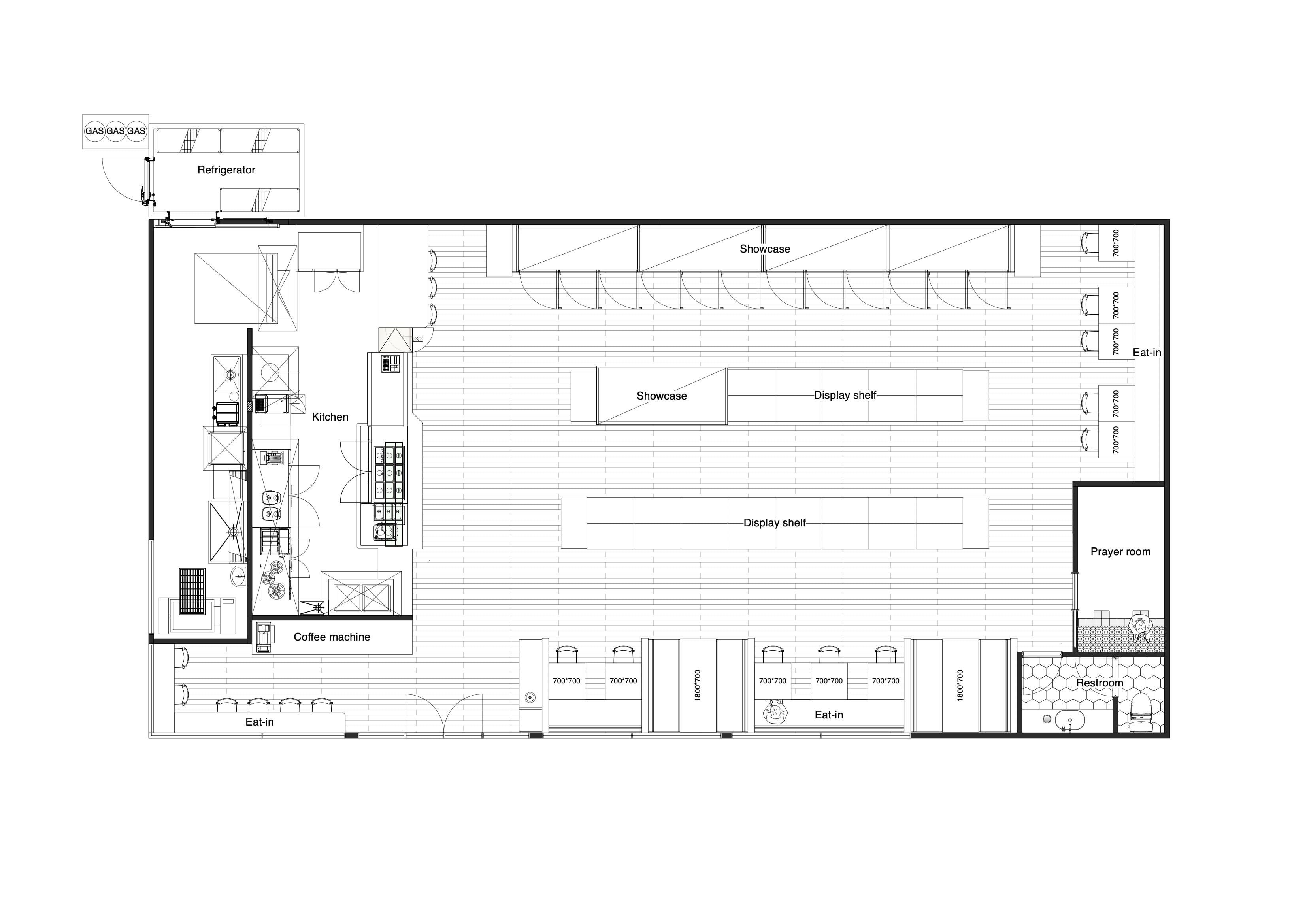
Mega Kebab愛知東郷店では、 テイクアウトを前提としたオペレーションに合わせ、 キッチン・ショーケース・客導線を整理したレイアウトを設計。 混雑時もスムーズな提供を実現する店舗計画としています。

濃い色味の木目と鮮やかな赤タイルで構成したカウンター&厨房。 調理のライブ感がガラス越しに伝わる、活気あるフードスタンドの空気感を演出しています。

