
メゾン・ド・シェリー
Design・Construction
〒452-0805 愛知県名古屋市西区市場木町259 メゾン・ド・シェリー | 2025


DEIL事務所の改装工事プロジェクト。 壁面には THE PANEL、コーヒーテーブルには THE GLASS を採用し、素材の存在感で空間をアップデートしました。日常の業務空間でありながら、打ち合わせや来客時にもDEILの世界観が自然と伝わる事務所空間に仕上げています。
執務室では、壁一面にTHE PANELを採用。素材の陰影と反射を活かし、集中力と空間の緊張感を高めたワークスペースに仕上げました。無機質な躯体と組み合わせ、デザイン性と実用性を両立しています。



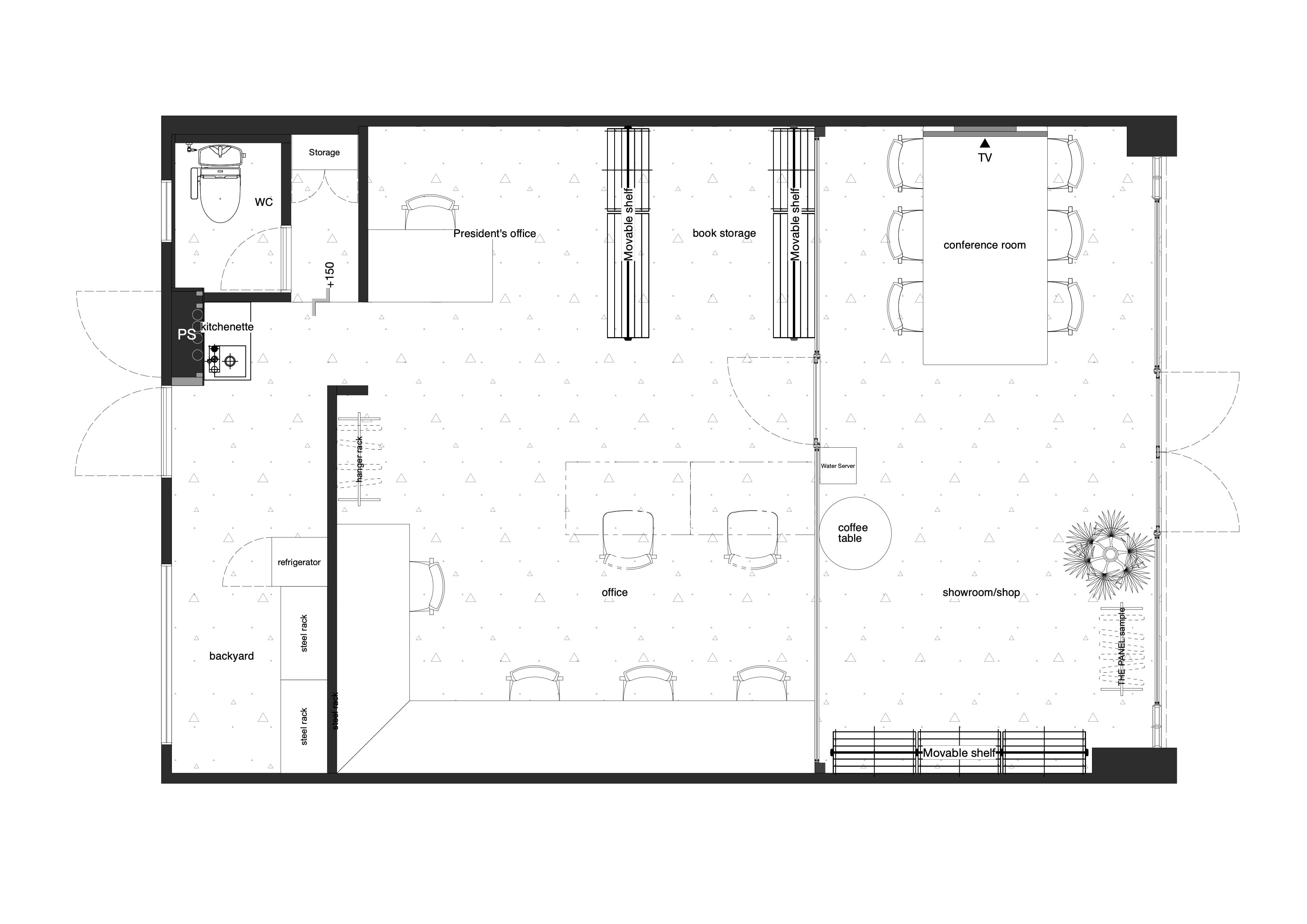
DEILオフィスのフロア平面図。執務スペースを中心に、打ち合わせ・作業動線をシンプルに整理し、素材展示や制作にも対応できるレイアウトとしています。

THE PANELを壁面に採用したトイレ空間。素材の陰影と質感を活かし、最小限の構成でも印象に残る、無機質で落ち着いた仕上がりとしています。


オフィス内に設けたショールームエリア。 THE GLASSとTHE PANELを実物サンプルで展示し、質感・透過・表情の違いを空間の中で体感できる構成としています。設計検討や素材選定の場として機能する実践的な展示空間です。




