
DEIL KASUGAI OFFICE・SHOWROOM RENOVATION
Design・Construction
愛知県春日井市 | 2025


メゾンドシェリーは、DEILが提案する1Rマンションのモデルルームです。 壁面には立体感と陰影を生む THE PANEL、床には光を受けて表情が変わる THE GLASS を採用。限られたワンルーム空間の中で、素材の質感そのものが空間の印象を決定づける構成としました。 装飾に頼らず、マテリアルの存在感で成立させることで、居住性とデザイン性を両立。 モデルルームとしてだけでなく、実際に賃貸契約が可能な住空間として、DEILの素材と設計思想を体感できる一室です。
床全面に THE GLASS を採用した空間。 ガラス特有の反射と質感が、光の入り方や視線の角度によって表情を変え、静かな緊張感と奥行きを生み出している。 仕上げ材としての存在感と機能性を両立させた、DEILが提案する新しい床表現。




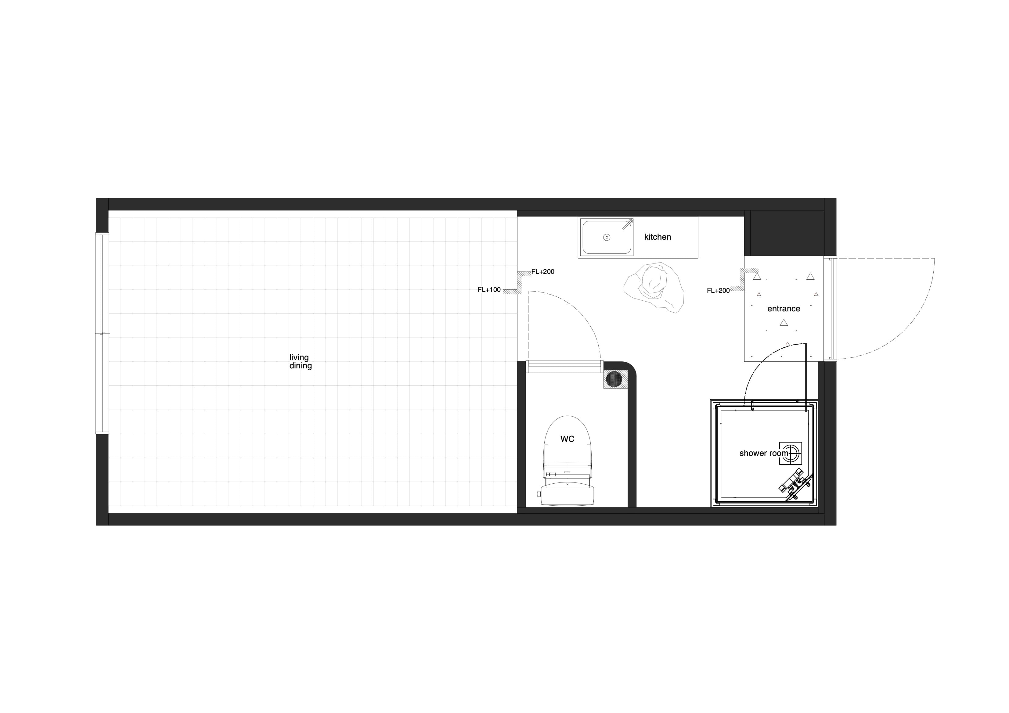
浴槽からシャワールームへ刷新。 限られた面積でも動線を確保し、無駄を削ぎ落とした機能的な水回りへアップデートしました。コンパクトながらも使い勝手と清潔感を両立したリノベーション事例です。

無機質な素材感を活かした空間に。居住用途だけでなく、タトゥースタジオや事業用住所としても使用された実例です。用途を限定しない設計で、空間の可能性を広げています。


ワンルームながら生活動線をシンプルに整理し、居室を広く確保。素材の質感を活かした内装が引き立つレイアウトとしています。

トイレ空間に THE PANEL を採用。 光の当たり方によって表情を変えるパネルが、限られたスペースに奥行きと個性を与えている。


キッチンカウンターに THE GLASS を採用。 ガラスブロック越しに光が透過し、重くなりがちなキッチン周りに軽さと奥行きをもたらしている。 作業性を損なわず、視線を柔らかく遮ることで、機能とデザインのバランスを成立させたキッチンデザイン。


クロコダイル柄をモチーフにしたモルタルの造作仕上げ。 意匠としての遊びと、素材の荒さをあえて残すことで、量産では出せない表情をつくり出した造作デザイン。

夜になることで、空間はさらに深みを増す。 床やキッチンカウンターに使用した THE GLASS が照明を受けて静かに反射し、視線の奥行きを生み出す。 一方、壁と天井に用いた THE PANEL は光を拡散させ、空間全体を包み込むような陰影を形成。 素材ごとの光の受け止め方の違いが、夜ならではの落ち着きと緊張感を同時に成立させている
