
DEIL KASUGAI OFFICE・SHOWROOM RENOVATION
Design・Construction
愛知県春日井市 | 2025
長年倉庫として使われていた無骨な空間を、DEILの世界観を体現するオフィスへフルリノベーション。 既存の素材感を生かしながら、鉄・モルタルを基調としたインダストリアルデザインを再構築。 壁面にはTHE PANELを採用し、ブランドのショールームとしての機能も兼ね備えた空間へとアップデートしました。
既存は倉庫として使用されていた空間。コンクリート躯体が露出し、設備機能も最小限の状態でした。

街に開いたガラスの間口と、無骨な素材に映えるロゴサイン。 DEILらしさをそのまま外観に落とし込んだファサードです。
コンクリートの躯体をそのまま活かし、ステンレスの天板と黒のチェアでまとめたワークスペース。 無機質な質感の中に、集中しやすい環境をつくり出しています。



内装仕上げ材を手に取りながら検討できるショールーム。 多様なサンプルを集約し、来客時の提案力を高めています。




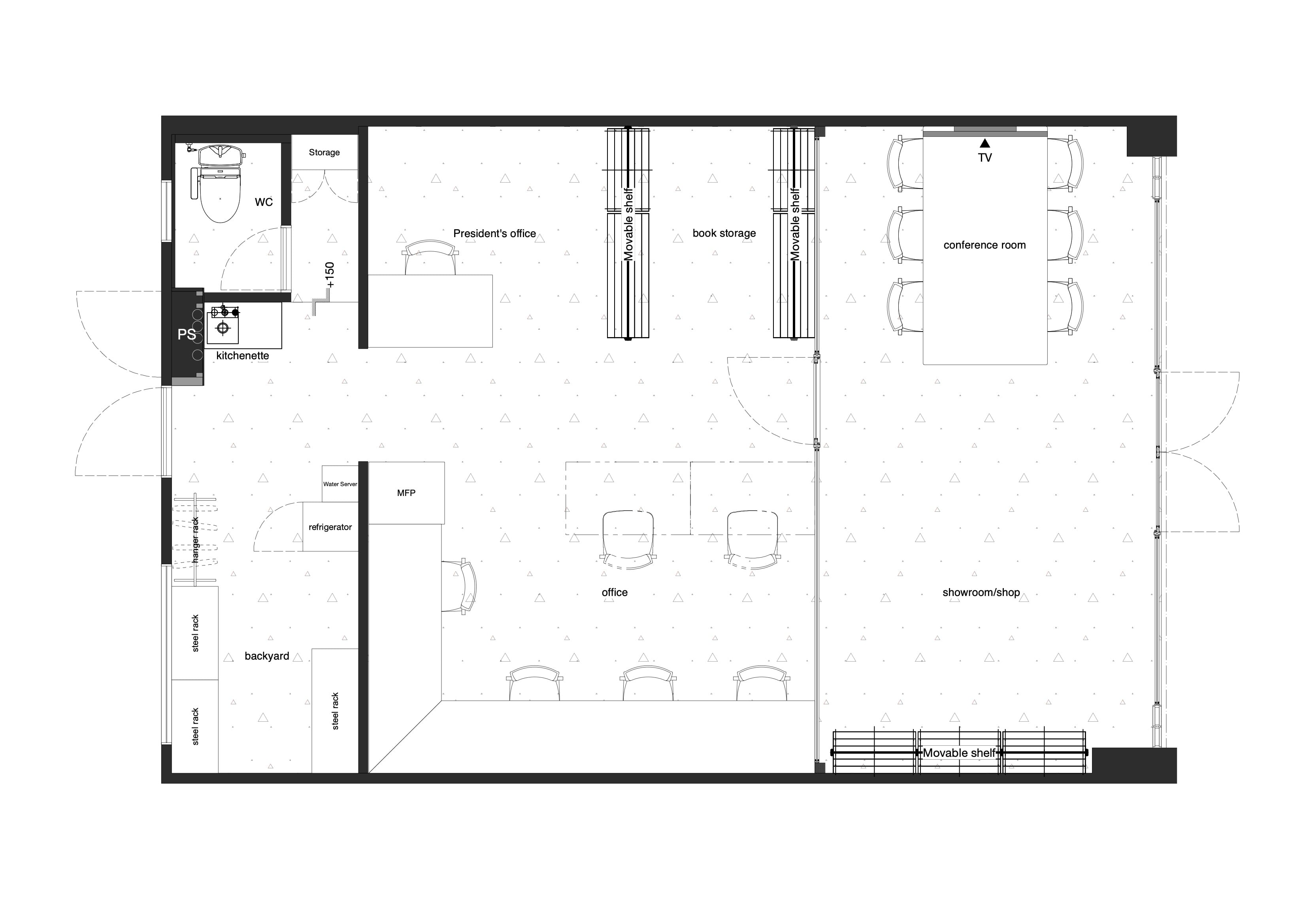
執務室と会議室、ショールームを一つの動線でシームレスにつないだオフィス計画。 必要な機能をコンパクトにまとめつつ、来客対応から日常業務までスムーズに行える構成としています。


Design・Construction
愛知県春日井市 | 2025

Design・Construction
〒452-0805 愛知県名古屋市西区市場木町259 メゾン・ド・シェリー | 2025

Design・Construction
愛知県名古屋市 | 2025

Design・Construction
〒470-0162 愛知県愛知郡東郷町春木清水ケ根4088-66 | 2025